house design with floor plan (39) House designs (36) house for sale (16) house ideas (29) House Plans (37) HOUSE PLANS AND LAYOUT (51) house with floor plan (149) Japan Hiring (12) Japan Jobs (41) job advertisement online (50) Job Boards (99) job postings (214) Job Postings Near Me (99) job site (47) Jobs Abroad (153) jobs near me (52) KuwaitExplore katie Clay's board "36 x 36 floor plan" on See more ideas about small house plans, house floor plans, house plansHOUSE PLAN 18 X 36 FEETWelcome to our you tube channel KBS Architects

Myydaan Rivitalo 3 Huonetta Hirvensalmi Hirvensalmi Sysmalantie 2 A Etuovi Com Katso Kohteen Kuvat
36*37 house plan
36*37 house plan-With today's economy, affordable small house plans are answering the call for us to live more efficiently These designs are compact and practical In general, the designs in this home plan collection offer less than 1800 square feet of living space, but deliver floor plans loaded with functional, comfortable and efficient livingLooking for a 30*40 House Plan / House Design for 1 BHK House Design, 2 BHK House Design, 3 BHK House Design Etc Make My House Offers a Wide Range of Readymade House Plans of Size 30*40 at Affordable Price These Modern House Designs or Readymade House Plans of Size 30*40 Include 2 Bedroom, 3 Bedroom House Plans, Which Are One of the Most Popular 30*40 House Plan




Myydaan Rivitalo 3 Huonetta Hirvensalmi Hirvensalmi Sysmalantie 2 A Etuovi Com Katso Kohteen Kuvat
Quick Links Plan Search My Saved Plans ContactLooking for vastu house plans, 37 #9 Double Bedroom House Plan — Raveendra 1453 Size 360 X 39 (North facing), like to construct 3 floors and each floor 2 houses Only ground floor 3 bedrooms and parking and North side 2 shops Please serve the plans for me, I am more than happy to pay for all the expenditures and yourPlan from $ 33 sq ft 1 story 4 bed 93' 5" wide 4 bath In addition to the house plans you order, you may also need a site plan that shows where the house is going to be located on the property You might also need beams sized to accommodate roof loads specific to
These 6 apartments make 30 square meters look comfortable ratherMany factors contribute to the cost of new home construction, but the foundation and roof are two of the largest ones and have a huge impact on the final priceNarrow lot house plans, cottage plans and vacation house plans Browse our narrow lot house plans with a maximum width of 40 feet, including a garage/garages in most cases, if you have just acquired a building lot that needs a narrow house design Choose a narrow lot house plan, with or without a garage, and from many popular architectural
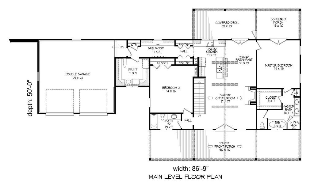
MAIN LEVEL FLOOR PLAN – 3736 2nd FLOOR PLAN – 3736 COLUMN SLAB LAYOUT – 3736 $ – $1, Foundation Options Choose an option Crawl Space Plan Set Options Choose an option PDF (Single License) $ CAD (Single License) $ Clear 3736 VTR quantity2 Bedroom House Plans, Floor Plans & Designs 2 bedroom house plans are a popular option with homeowners today because of their affordability and small footprints (although not all two bedroom house plans are small) With enough space for a guest room, home office, or play room, 2 bedroom house plans are perfect for all kinds of homeownersHouse plans with a foyer offer an entryway to greet guests and often include a coat closet for hanging coats and bags The foyer is the first space in your home that guest will see, and it will set the stage for the rest of your house Greet guests in style with a thoughtful foyer Many foyer entry home plans will offer a storage closet to




24 X 37 House Plan 8 Sq Ft Youtube




New Home Designs To Build In Melbourne Porter Davis
Plans Found 256 If you're looking for a home that is easy and inexpensive to build, a rectangular house plan would be a smart decision on your part!House Plan for 27 Feet by 37 Feet plot (Plot Size 111 Square Yards) Plan Code GC 1650 Support@GharExpertcom Buy detailed architectural drawings for the plan shown belowNarrow Lot House Plans With a maximum width of 55 feet, these house plans should fit on most city lots You can get the most out of your narrow lot by building the home plans upward — in a twostory design A basement is another option You can use it for storage, or finish it as living space Sort by Most Popular Size (sm to lg) Size (lg




Lacey Contemporary Home Plan 126d 0099 House Plans And More




House Plan For 35 Feet By 48 Feet Plot Plot Size 187 Square Yards Gharexpert Com House Layout Plans Barndominium Floor Plans 30x50 House Plans
House Plans Search We offer more than 30,000 house plans and architectural designs that could effectively capture your depiction of the perfect home Moreover, these plans are readily available on our website, making it easier for you to find an ideal, builderready design for your future residence Featured PlanNorth Facing Vastu House Plan This is the North facing house vastu plan In this plan, you may observe the starting of Gate, there is a slight white patch was shown in the half part of the gate This could be the exactly opposite to the main entrance of the houseSmall house plans offer a wide range of floor plan options This floor plan comes in the size of 500 sq ft – 1000 sq ft A small home is easier to maintain Nakshewalacom plans are ideal for those looking to build a small, flexible, costsaving, and energyefficient home that




Contemporary Style House Plan 3 Beds 1 5 Baths 1662 Sq Ft Plan 25 4876 Houseplans Com




5328 101st St Sw Mukilteo Wa 975 Estately Mls
24x36 House 2 Bedroom 1 Bath 864 Sq Ft Pdf Floor Plan 24x36 House 2 Bedroom 1 Bath 864 Sq Ft Pdf Floor Plan 24 X 36 Feet House Plans By Plan Home Design East Facing Emelita 24 X 36 852 Sqft Mobile Home Factory Select Homes 24x36 Post Beam House With A Nice Open Floor Plan Cabin Style House Plan 4574 HideawayHome plans Online home plans search engine UltimatePlanscom House Plans, Home Floor Plans Find your dream house plan from the nation's finest home plan architects & designers Designs include everything from small houseplans to luxury homeplans to farmhouse floorplans and garage plans, browse our collection of home plans, house plans, floor plans & creative DIY home plansHere comes the list of house plan you can have a look and choose best plan for your house For a house of size 1000 sq feet ie 25 feet by 40 feet, there are lots of options to adopt from but you should also look at your requirement You need to select the sizes of rooms as per your requirement Given below are few options you can select for



完了しました Naksha 1350 House Plan ただのゲームの写真




30 X 60 Feet House Ground Floor Plan Dwg File Cadbull
AmazingPlanscom offers house plan designs for narrow lots from designers in the United States and Canada Search our selection of house plans to find your new dream home!Readymade house plans include 2 bedroom, 3 bedroom house plans, which are one of the most popular house plan configurations in the country We are updating our gallery of readymade floor plans on a daily basis so that you can have the maximum options available with us to get the bestdesired home plan as per your needExplore The Tattered Rose's board "36 x 56" on See more ideas about house floor plans, house plans, how to plan




36x37 Home Plan 1332 Sqft Home Design 2 Story Floor Plan




Deluxe Barndominium With 2 Story Living Room gra Architectural Designs House Plans
Find a great selection of mascord house plans to suit your needs Home plans up to 40ft wide from Alan Mascord Design Associates Inc 3737 VTR FLOOR PLANS 1st FLOOR PLAN – 3737 2nd FLOOR PLAN – 3737 $ – $1, Foundation Options Choose an option Basement $ Crawl Space Standard Slab $000 Plan Set Options Choose an option CAD (Single License) $ PDF (Single License) $ ClearSome Colonial house plans, Cape Cod floor plans, and Victorian home designs are 2story house plans Our collection of twostory house plans features designs in nearly every architectural style ranging from Beach houses to Traditional homes It includes other multilevel home designs such as those with lofts and storyandahalf designs




Farmhouse Plan 1 544 Square Feet 3 Bedrooms 2 Bathrooms 110




5003 Bonnalynn Dr Hermitage Tn Mls
Gross area 2747 sq ft Bedrooms 4 Bathrooms 3 Floors 2 Height 24′ 7″ Width 36′ 1″ Depth 50′ 10″ Modern House with large covered terrace and Everyone in this world think that he must have a house with all Facilities but he has sharp place and also have low budget to built a house with beautiful interior design and graceful elevation, here I gave an idea of 18×36 Feet /60 Square Meter House Plan with wide and airy kitchen and open and wide drawing and dining on ground floor and bedroom with attach HOUSE PLAN DETAILS Plan Code PHP Small House Plans Bedrooms 1 Bathrooms 1 Floor Area 37 sqm Lot Size 75 sqm ESTIMATED COST RANGE Total Floor Area (in sqm) 37 Rough Finished Budget P444,000 P518,000 Semi Finished Budget P592,000 P666,000 Conservatively Finished Budget P740,000 P814,000 Elegantly Finished Budget



House Land Packages In Melbourne Orbit Homes




37 30 House Plan South Facing House Plan 3 Bhk Ghar Ka Naksha With Vastu
The house plans gives a very decorative shutters and the architectural details enhance the appearance of this lovely house ideally suited for your family The house plan for 27 feet by 37 feet plot includes welldesigned living space, entrance hall, dining room, bedrooms with attached bathroom and many moreHouse Plans By Square Footage Newest House Plans Affordable Plans Canadian House Plans Bonus Room Great Room High Ceilings InLaw Suite Large / Luxe Kitchen Open Floor Plans Outdoor Living Plans with Photos Plans with Videos Split Master Bedroom Layout View Lot House Plans Under 1000 Sq FtDuplex house plan map naksha




House Plan For 37 Feet By 45 Feet Plot Plot Size 185 Square Yards Gharexpert Com




36 Superb East Facing House Plan Drawings As Per Vastu Shastra Houseplansdaily
1668 Square Feet/ 508 Square Meters House Plan, admin 1668 Square Feet/ 508 Square Meters House Plan is a thoughtful plan delivers a layout with space where you want it and in this Plan you can see the kitchen, great room, and master If you do need to expand later, there is a good Place for 1500 to 1800 Square FeetHouse Plan for 39 Feet by 36 Feet plot (Plot Size 156 Square Yards) Plan Code GC 1441 Support@GharExpertcom Buy detailed architectural drawings for the plan shown below Architectural team will also make adjustments to the plan if you wish to change room sizes/room locations or if your plot size is different from the size shown belowHouse map welcome to my house map we provide all kind of house map , house plan, home map design floor plan services in india get best house map or house plan services in India best 2bhk or 3bhk house plan, small house map, east north west south facing Vastu map, small house floor map, bungalow house map, modern house map its a customize service




Own House Plan Ownhouseplan1 Twitter




Kerala House Design Two Story 37x36 House Design Home Cad
3 Bedroom House Plans & Home Design 500 Three Bed Villa Collection Best Modern 3 Bedroom House Plans & Dream Home Designs Latest Collections of 3BHK Apartments Plans & 3D Elevations Cute Three Bedroom Small Indian Homes Kerala Style House Plan and Elevation 90 Urban Home Plans Collections18×36 Feet /60 Square Meter House Plan, 25x40 Feet House Plan/92 Square Meter House Plan with beautiful elevation design best interior with low budget and easy build for every man Here I try my best to give to peoples an idea of x40 Feet /92 Square Meters House Plan with wide airy bedThe points are 1 Position Of Main Entrance Main Door of a East Facing Building should be located on auspicious pada ( Vitatha, Grihakhat ) See the column Location of Main Entrance 2 Position Of Bed Room Bed Room should be planned at South West / West / North West / North 3 East Facing House plans 3 6




House Plan 38 39 Best House Design For Ground Floor




Myydaan Rivitalo 3 Huonetta Hirvensalmi Hirvensalmi Sysmalantie 2 A Etuovi Com Katso Kohteen Kuvat
Search results for House plans between 30 and 40 feet wide and between 45 and 60 feet deep and with 2 bathrooms and 1 storyTriple Story Home Elevations 48 small Home Elevations 35 Kerala Home Elevations 9 Multi Story Building Elevations 15 Traditional Home Elevation 34 Residential Cum Commercial Home Elevations 14 Commercial Building Elevations 7 House plan up to 1000 sq ft 24 House planSmall house plan, vaulted ceiling, spacious interior, floor plan with three bedrooms, small home design with open planning House Plan CH142 Net area 1464 sq ft




House Plan For 39 Feet By 36 Feet Plot Plot Size 156 Square Yards Gharexpert Com




Two Story Mountain Cottage With Open Concept Living Space pm Architectural Designs House Plans
24×36 cabin floor plans small cabin house plans log cabin from 24×36 house plans 24 x 36 ranch house plans from 24×36 house plans The main supplementary expense as regards house plans you should budget for is any customization to the growth plans you may want in the same way as again, you should acquire a green light and definite cost36 Plan 95 1,028 sq ft Bed 1 Our award winning residential house plans, architectural home designs, floor plans, blueprints and home plans will make your dream home a reality!Find wide range of 36*42 House Design Plan For 1512 SqFt Plot Owners If you are looking for duplex house plan including Beach Style Floorplan and 3D elevation Contact Make My House Today!




37 40 Duplex House Plan 1480sqft East Facing House Plan 5bhk Small House Plan Modern Duplex Home Plan



Plans
Home Plan General Specifications Bedroom Size 143 feet by 90(128 square feet) Bathroom Size50 feet by 46(23 square feet) Formal Living;NIL Dining Room8 feet by 90(72 square feet) Sit out Kitchen;70 feet by 53(37 square feet) Loby area 66 feet by 96(6336 square feet) Shaft 26 feet by 40(104 square feet) Lawn 24×36 House Plans 24 X 36 Floor Plans 24×36 Floor Plan Modular Homes is related to House Plans if you looking for 24×36 House Plans 24 X 36 Floor Plans 24×36 Floor Plan Modular Homes and you feel this is useful, you must share this image to your friends we also hope this image of 24×36 House Plans 24 X 36 Floor Plans 24×36 Floor Plan Modular HomesCustom House Design While you can select from 1000 predefined designs, just a little extra option won't hurt




House Plan For 37 Feet By 45 Feet Plot Plot Size 185 Square Yards Gharexpert Com Low Cost House Plans Beautiful House Plans House Plan Gallery




Gallery Of House68 Design Collective Architects 47



Winchester House Design Rawson Homes Home Builders




House Plan For 36 Feet By 45 Feet Plot Plot Size 180 Square Yards Gharexpert Com




37 25 Ft House Plan 2 Bhk With Car Parking And Stair Outside



The Club At Beach Enclave Long Bay 长湾 Pr Luxury Home For 销售




36x37 Home Plan 1332 Sqft Home Design 2 Story Floor Plan




Gallery Of R E House Dp Hs Architects 18




37 X 30 Feet House Plan 37 फ ट X 30 फ ट म घर क नक श Plot Area 43 X 36 Feet 3bhk With Parking Youtube




Gallery Of Wind Vault House Wallflower Architecture Design 37




New Home Designs To Build In Melbourne Porter Davis




36 X 40 House Plan Archives



1



3




Two Story Contemporary Style House Plan 87



3




3 Bedroom House Plan 37 36 For Single Floor House



30 36 House Design




36 X 37 Ghar Ka Naksha 36 X 37 Houseplan Design 2 Bhk Homeplan Design Barir Design Youtube




36x37 Home Plan 1332 Sqft Home Design 2 Story Floor Plan




House Plan For 37 Feet By 45 Feet Plot Plot Size 185 Square Yards Gharexpert Com




36x37 House Plans For Your Dream House House Plans




37 41 Ft House Plan 5 Bhk With Parking And Coaching Classes




37 Geoff Geering Drive Netherby Ashburton Canterbury 7700 For Sale Realestate Co Nz




Home Plan Design With Detail Dimension In Dwg File Cadbull




37 X 30 Ghar Ka Design I 1110 Sqft House Plan I Ghar Ka Naksha I 3 Bhk Home Plan South Facing Learning Technology




Country Style House Plan 2 Beds 2 Baths 1650 Sq Ft Plan 932 36 Eplans Com




36x37 House Plans For Your Dream House House Plans




60x 36 10 Marla House Plan House Plans One Story House Map




Closeup To Floor Plans White Paper House And Measuring Yellow Tape Architect Drawings Expensive Renovation Buildings Stock Photo Image Of Engineering Engineer



29 X 36 Ft 2 Bhk House Plan In 1058 Sq Ft The House Design Hub




Gallery Of Daisy House Iz Architects 36 Prefabricated Architecture Architect House




36x37 Home Plan 1332 Sqft Home Design 2 Story Floor Plan




36x37 Home Plan 1332 Sqft Home Design 2 Story Floor Plan




Apartment 37 Floorplan




House Plan 2 Bedrooms 1 5 Bathrooms 4940 Drummond House Plans




37 38 Vtr Garrell Associates Inc




37 36 Vtr Garrell Associates Inc




37x31 House Plans For Your Dream House House Plans




House Plan For 37 Feet By 45 Feet Plot Plot Size 185 Square Yards Gharexpert Com House Plans Building Design Plan Low Cost House Plans




23 X 36 House Design Ii 23 X36 House Plan Ii 23 36 Ghar Ka Naksha Youtube




84 Feet By 36 Home Plan Everyone Will Like Acha Homes



Greenfield Housing India Private Limited Fairland Fairland Properties Fairland Saravanampatti Fairland Sathy Road Fairland Kovilpalayam Fairland Kurumbapalayam Greenfield Fairland Greenfield Coimbatore Greenfield Plots Greenfield Houses




28 37 Simplex House Plan 11sqft West Facing House Plan 3bhk Small House Plan 28 37 Simplex Storey House Design 28 37 Simplex House Plan 1036sqft West Facing House Plan



Civil Engineer For All Types Of Maps And Home Plan Contact Home Facebook




36x37 House Plans For Your Dream House House Plans




37 36 Vtr Garrell Associates Inc




40x50 Barndominium Floor Plans 8 Inspiring Classic And Unique Designs




South House Modular Cabin By Wendi Modular




35x40 House Plan Best 2bhk House Plan Dk 3d Home Design



19 X 37 House Plan West Facing Skytouch Home Builders Facebook



Luxury Boston Boston S Premier Real Estate Resource




Interior Design Modern Luxury 3 Floor House Elevation With Floor Plan




37 17th Ave 37 Haverhill Ma 010 Estately Mls




3d Virtual Tour Park37 Of Blacksburg Apartments In Blacksburg Va




36 X 37 House Plan 3 Bedroom 1 Bathroom Kitchen Dining And Visitors Area Staircase New Model Sketch Youtube




House Plan 4 Bedrooms 2 Bathrooms 6922 Drummond House Plans



Floor Plan 36 38 Bradford Quincy




Floor Plans For Unit 6 Floor 36 37 1 Bedroom Apartments In Aykon City Bayut Dubai




Plan 9738 Residential Design Services Diy House Plans Cottage Floor Plans House Plans




Nova Urban Towns Floor Plans Prices Availability Talkcondo



Civil Engineer Deepak Kumar 999 Sqft House Plan 27 X 37 House Plan




36 X 37 Feet House Plan 1332 Sq Ft Home Design Ghar Ka Naksha घर बन न पर खर च Youtube




Farmhouse Style House Plan 4 Beds 3 5 Baths 37 Sq Ft Plan 1070 36 Eplans Com




Wonderful 36 West Facing House Plans As Per Vastu Shastra Civilengi




House Plan For 27 Feet By 37 Feet Plot Plot Size 111 Square Yards Gharexpert Com




26 X 36 Size Budget House




Rose Removal Home Located In Narangba




3 Bedroom Modern House Design 11x36 Feet Small Space House Plan 396 Sqft 44 Gaj Walkthrough 21 Kk Home Design




36x37 Home Plan 1332 Sqft Home Design 2 Story Floor Plan




36x37 Home Plan 1332 Sqft Home Design 2 Story Floor Plan




Readymade Floor Plans Readymade House Design Readymade House Map Readymade Home Plan




House Plan For 37 Feet By 45 Feet Plot Plot Size 185 Square Yards Gharexpert Com




36x40 House Design With Floor Plan And Elevation Home Cad




4 Bhk 2295 Sq Ft Villa For Sale In Bollineni Hamlet Bangalore




Rapport Fig 36ground Plan Of Mr Roys House Lower A Verandah 6 Entrance Hall Including Staircase Bl C Parlor D Bed Room Dl Cloak Room E Dining Room El Stove E2 Cupboard




16 House Design Ideas Low Cost House Plans 2bhk House Plan House Map




2 Bedroom Semi Detached House For Sale In 68 North Park Road Stockport Sk7




36x37 House Plans For Your Dream House House Plans




33 X 37 House Plan 1221 Sq Ft 136 Sq Yds 113 Sq M 136 Gaj Youtube
0 件のコメント:
コメントを投稿